Residential
More from realestate.co.nz:
Agents News

24 Florence Drive, Lincoln, Selwyn

Titled and Underway!

dollar

Negotiation

House
House
Bedroom
4
Bathroom
2
Floor area
231m2
Land area
650m2
Title type
Freehold
Garage
3
On this page:

Property details

Listing # RL2473 | Listed on 13 April 2022

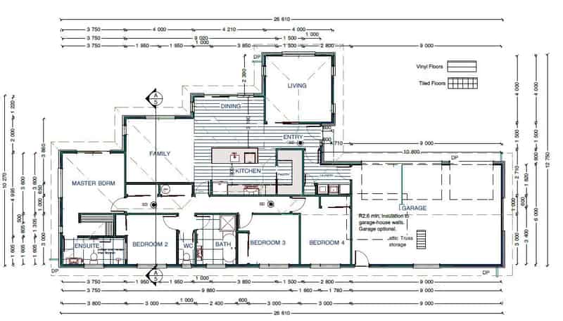
Perfectly situated in the sought after, fast growing Rosemerryn subdivision, this stunning brand new build will soon be under construction. Inside, the home will boast 4 bedrooms (master with ensuite and walk-in-robe), a modern family bathroom and a kitchen that any chef will love, complete with up-to-date appliances, engineered stone benchtops and a walk-in-pantry. The sunny open-plan kitchen & dining flows into the family room and is complimented by a separate, spacious formal lounge, all of which lead out to private, sun-drenched patios. The 650m2 section is perfect for BBQ's and social gatherings. Temperature control is made easy with two heat pumps to ensure it stays cool in the summer and cosy and warm on those winter evenings. There's a separate laundry, triple internal access garage with attic storage and plenty of off-street parking. Close to the Rosemerryn retail precinct, public transport, Lincoln Primary and Lincoln High Schools. This enticing package is ready and waiting for you and with Lincoln Township flourishing...this won't last long! Contact Caine on 0273301002 now for more information.

***Copy and paste the following link into your search bar to download the floor plan and other property information***

https://www.harcourts.co.nz/Property/948106/RL2473/24-Florence-Drive-Rosemerryn#documents

"Please be aware that this information has been supplied by the vendor and/or sourced from: Property Guru, Property Smarts, Land Information NZ, Local Councils, ECAN, CERA and other organisations. Additionally, the property may or may not comply with the Healthy Homes Standards. Harcourts Four Seasons Realty 2017 Ltd is merely passing over this information as supplied to us. We cannot guarantee its accuracy or reliability and recommend purchasers undertake their own due diligence regarding these items."

Your notes
Add notes for your personal reference. This can only be seen by you.

Additional features

Water closet
2 Separate toilets

Schools and childcare in the area

$
$
% p.a.
years
$0 per week
Contact the agent
Name  (required)
Email  (required)
Phone
I'd like to enquire about:
Your message

By continuing, you agree to our terms of use and privacy policy.

A young family with pets illustration