Residential
More from realestate.co.nz:
Agents News

Lot 1/15 Lipscombe Avenue, Papatoetoe, Manukau City

Brand New Home & Land Package

dollar

Negotiation

House
House
Bedroom
3
Bathroom
2
Land area
174m2
On this page:

Property details

Listing # RX2849974 | Listed on 13 April 2022

A fantastic opportunity to own your very own brand new home. Only 6 are available and they will be gone very soon.

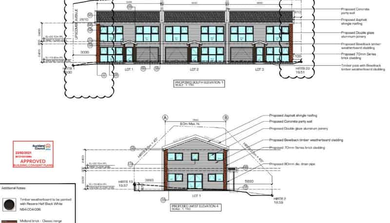
This 3 bedroom 2 bathroom home is currently under construction and is estimated completion date is towards the end of this year. This double story brick & weatherboard home is one that is easy to maintain and one that stands out with its top quality finishes.

The ground floor includes a single internal garage and a full open living and dining area space flowing onto a modern kitchen design. Not to mention a laundry area and a separate toilet. The next story up includes three spacious bedrooms, one common bathroom and a separate ensuite in the master bedroom. Space and privacy will never be an issue in this fantastic home, and with a top quality design and finishes this home comes with a master builders guarantee just to top it all off.
A great chance to own your very own home in a great every desirable location.

Secure your Brand New Modern Designed Home Today.

Features:

- Brand New Freehold Property
- 3 bedrooms
- 2 bathrooms + 1 additional toilet
- Single Internal Garage
- Laundry Area
- Open Living & Dining Area
- Brick & Weatherboard Exterior
- Heat Pump
- Quality fixtures & fittings
- Close to Manukau & Papatoetoe
- Few minutes drive away from Motorway on ramps
- Close to public transport facilities
- Close to local amenities
- Front Entrance with a secure brick fence

Don't Miss Out Call Us Now!!!
Sarath on 022 342 4450
Jehan on 021 070 5812

PLEASE NOTE: Specified floor and land area sizes have been obtained from sources such as Property Guru, Auckland Council (LIM) or Title documents. They have not been measured by the Salesperson or Harvey’s Papatoetoe, Baath Real Estate Limited. We recommend you seek your own independent legal advice if these sizes are material to your purchasing decision.

Your notes
Add notes for your personal reference. This can only be seen by you.

Additional features

Other park
1 other park

Schools and childcare in the area

$
$
% p.a.
years
$0 per week
Contact the agent
Name  (required)
Email  (required)
Phone  (required)
I'd like to enquire about:
Your message

By continuing, you agree to our terms of use and privacy policy.

A young family with pets illustration