Residential
More from realestate.co.nz:
Agents News

6 Te Ara Aukati Terrace, Pokeno, Franklin

Enquiries Over $800,000

dollar

Negotiation

Section
Section
Land area
3716m2
On this page:

Property details

Listing # MIL5524 | Listed on 13 April 2022

Build your escape from the city on this wonderful lifestyle section in Kowhai Downs.

Situated in a quiet part of Pokeno, surrounded by rolling green hills and mature trees, it is the perfect location for your dream house

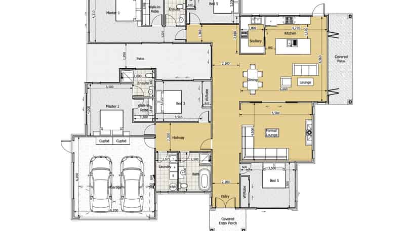
This 3716m2(MOL) land is perfectly positioned in the corner and ready to build. All the hard work will be done for you to obtain the building consent for a 5-Bedroom single level dwelling on site.

This was supposed to be the dream home for the vendor but change in situation has caused them to move away from this project.

If you are looking to build a brand-new home with lifestyle charm in an exclusive community then Kowhai Downs is the perfect place. Kowhai Downs is an upmarket rural residential development located in Pokeno, South of Auckland. Kowhai Downs is a rarity in the Auckland area offering a lifestyle opportunity within reach of the city.

Handy Location :

- 2 mins walk from Motorway on and off Ramps

- 4 mins drive to Pokeno School

- 4 mins drive to Countdown and shops

Call Savi today for viewing appointment at 022 516 1086

Download Documents - https://www.harcourts.co.nz/Property/950398/MIL5524/6-Te-Ara-Aukati-Terrace#documents

Your notes
Add notes for your personal reference. This can only be seen by you.

Schools and childcare in the area

$
$
% p.a.
years
$0 per week
Contact the agent
Name  (required)
Email  (required)
Phone
I'd like to enquire about:
Your message

By continuing, you agree to our terms of use and privacy policy.

A young family with pets illustration