Residential
More from realestate.co.nz:
Agents News

Lot 2/76 Cargill Street, Papakura, Papakura

Buy off Plans today!

dollar

Negotiation

House
House
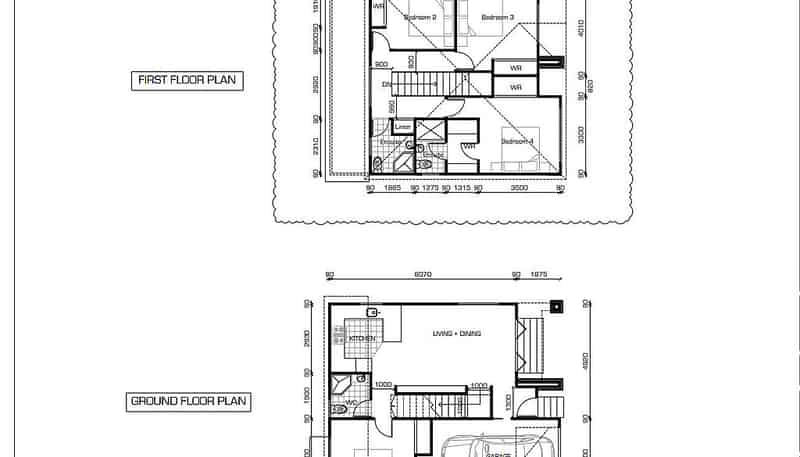
Bedroom
4
Bathroom
2
Floor area
86m2
Land area
158m2
Garage
1
New build
New build
On this page:

Property details

Listing # L11113899 | Listed on 13 April 2022

Buying off the plans before its too late or take over the whole project

Featuring:

  • 4 spacious bedrooms
  • 2 ensuites + separate bathroom downstairs prefect for guests!
  • Open plan living and dining area
  • Single internal access garage

Close to everyday amenities such as Schools, Motorways and Local Shops!

Give me a call today for a private viewing before its too late!

PLEASE NOTE: Specified floor and land area sizes have been obtained from sources such as Property Guru, Auckland Council (LIM) or Title documents. They have not been measured by the Salesperson or Hills Real Estate Limited . We recommend you seek your own independent legal advice if these sizes are material to your purchasing decision.

Your notes
Add notes for your personal reference. This can only be seen by you.

Schools and childcare in the area

$
$
% p.a.
years
$0 per week
Contact the agent
Name  (required)
Email  (required)
Phone
I'd like to enquire about:
Your message

By continuing, you agree to our terms of use and privacy policy.

A young family with pets illustration