Residential
More from realestate.co.nz:
Agents News

58 Ridgeland Way, West Melton, Selwyn

Exciting news! - A chance to secure now!

dollar

Negotiation

House
House
Bedroom
4
Bathroom
2
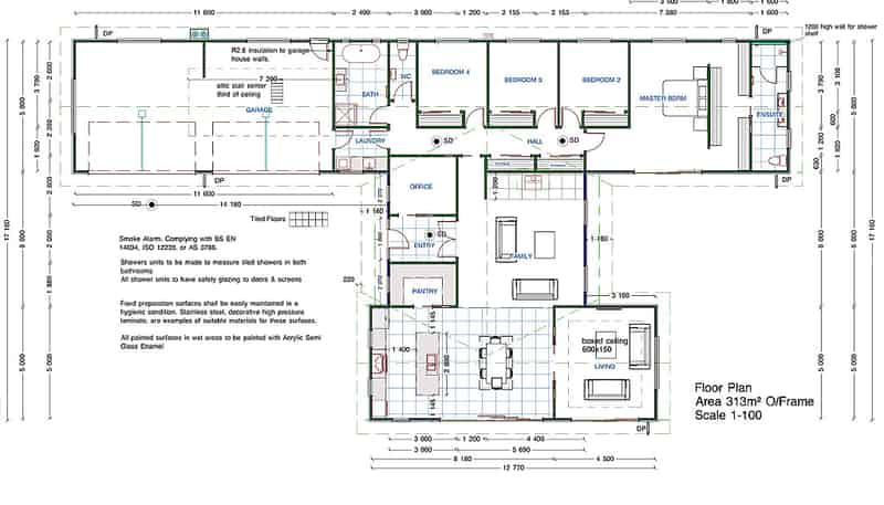
Floor area
313m2
Land area
1815m2
Garage
4
New build
New build
On this page:

Property details

Listing # WMN30004 | Listed on 13 April 2022

Buyer price indication is between $1,250,000 & $1,350,000

Here is your opportunity to get in early and secure this 4 car garage beauty that will be ready in December. The 313m2 floor plan comprises 4 bedrooms, plus an office, that provides a designated 'work from home' space. The 4 car garage, which will be carpeted and has attic storage, will store all your bikes, gym equipment, jet ski, project car etc with ease! Completed to a high standard throughout, the home will include a ducted heat pump system, a log burner, tiled bathrooms with under-tile heating, quality kitchen appliances and Bluetooth speakers, to name just a few of the lovely features. The 1815m2 section will be finished as per the landscaping plan with irrigation to the lawns, Kwila decks, fencing, driveway & paths, ready for you to move in and enjoy Summer in your new home.

For more information on this listing, please contact Sarah Booth on 0275 278 258 for a chat or email sarah.booth@raywhite.com

When alert levels change Ray White Town & Lifestyle will immediately adhere & conform to the requirements of the Government / Real Estate Authority

Your notes
Add notes for your personal reference. This can only be seen by you.

Additional features

Water closet
2 Separate toilets

Schools and childcare in the area

$
$
% p.a.
years
$0 per week
Contact the agent
Name  (required)
Email  (required)
Phone
I'd like to enquire about:
Your message

By continuing, you agree to our terms of use and privacy policy.

A young family with pets illustration