Commercial
More from realestate.co.nz:
Agents News

A Bright Future

304 Papanui Road, Strowan

Industrial Buildings
dollar

$1,550,000 Plus GST (if any)

Land area
840m2
On this page:

Map

Property details

Listing # CIC54746 | Listed on 13 April 2022

The sale of 304 Papanui road represents an outstanding opportunity to purchase a development site, with resource consent for a Pre-school in place.

The proposed childcare facility will accommodate a maximum of 50 children, consisting of 10 under 2 year olds and 40 over 2 year old children. There is a proposed lease in place to an experienced operator, which would return $150,000 + GST + OPEX per annum.

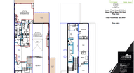
The planned floorplate for the childcare facility consists of a 215sqm ground floor and a second floor area of 110sqm. The ground floor area of the proposed building consists of play areas, toilets, nap rooms, a kitchen and foyer. The under 2 year olds will be located on the north eastern part of the ground floor, while the over 2's occupy the remaining play areas. The outdoor play area will be 256sqm in total and is located on the eastern side of the site.The second floor of the proposed building consists of offices, reception, staff room, laundry and toilets and as such will not be available to the public.

The location is ideal for an early years education centre, being directly over the road from St Andrews College, which has a waiting list of approximately 2 years for the kindergarten.

For more information or to arrange an inspection, please contact Nick Jiang M: 021 591 127 or E: nick.jiang@naiharcourts.co.nz

The floor areas quoted are sourced from Vendor plans and have not been independently verified. We recommend the purchaser seeks their own expert assessment from a suitably qualified professional.

Your notes
Add notes for your personal reference. This can only be seen by you.
Contact the agent
Name  (required)
Email  (required)
Phone
I'd like to enquire about:
Your message

By continuing, you agree to our terms of use and privacy policy.

A young family with pets illustration