Commercial
mobile navigation
Search for:
Residential
Rural
Commercial
Business
For sellers:
Market insights
Recent sales
Price estimates
Find an agent
News for sellers
More from realestate.co.nz:
Agents
News
Residential
Rural
Commercial
Business
For sellers
For sellers
My home
New
Agents
News
Buy
Lease
Search
Strowan, Christchurch City
Property type
Price
Filters
Include neighbouring suburbs
Search by region > district > suburb
Include neighbouring suburbs
2 results in Strowan, Christchurch City
Commercial Properties for Sale
Sort icon
Sort by:
Featured
Map view
Save search
Map
view
Market Insights
View More
Share this listing
Save this listing
Listed 4 years ago
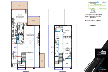
A Bright Future
840m
2
Industrial Buildings
$1,550,000 Plus GST
(if any)
View More
Share this listing
Save this listing
Listed 4 years ago
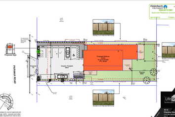
Development Site - Consented for Childcare!
325m
2
Industrial Buildings
Negotiation
1
1 - 2 of 2 items
All Commercial Sale Listings
Canterbury
Christchurch City
Strowan
Nearby suburbs
Strowan
(2)
Property types
Industrial Buildings
(2)
Categories
Residential for rent
(1)
Save search