Residential
More from realestate.co.nz:
Agents News
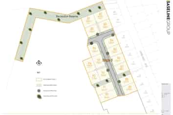
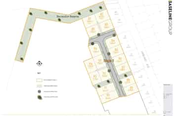
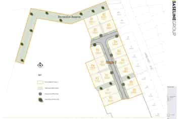
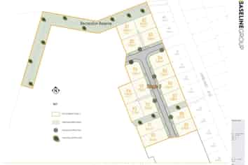
  • Twizel, Mackenzie

    25 results in Twizel, Mackenzie Homes and Real Estate for Sale

    Sort icon Sort by:
    Filter icon
    Filter by:
    Map view

    ADVERTISEMENT

    ADVERTISEMENT

    1 2

    1 - 20 of 25 items

    A young family with pets illustration